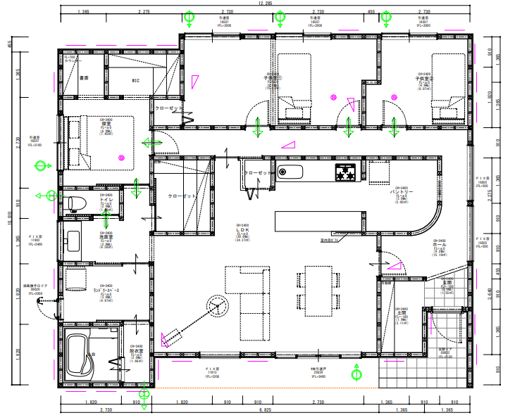
平面図拡大